Thiết kế khách sạn Grove Design là một tuyên ngôn đầy táo bạo của kiến trúc đương đại, nơi những quy chuẩn thông thường bị phá vỡ để nhường chỗ cho sự sáng tạo tự do. Với cấu trúc hình khối độc đáo và sự kết hợp không giới hạn giữa các vật liệu đối lập như bê tông trần, thép và kính, công trình này không chỉ là một nơi lưu trú mà còn là một tác phẩm nghệ thuật sắp đặt quy mô lớn. Tọa lạc tại khu vực năng động của thành phố, Grove Design định nghĩa lại khái niệm về không gian sống đô thị thông qua một lăng kính đầy góc cạnh và mang đậm hơi thở thời đại.
1. Triết lý thiết kế: Sự phá vỡ những quy tắc truyền thống
Thiết kế khách sạn Grove Design không đi theo lối mòn của những khách sạn hạng sang thông thường. Laboratory of Architecture #3 đã tiếp cận dự án với tư duy của một nhà điêu khắc, biến công trình thành một thực thể sống động, đầy tính gợi mở ngay giữa lòng đô thị. Triết lý này thách thức các khái niệm truyền thống về sự sang trọng, tìm kiếm vẻ đẹp trong tính nguyên bản và sự đối thoại giữa con người với không gian.

1.1. Ý tưởng chủ đạo: "Sự giao thoa giữa tĩnh và động"

Hòn đá tảng trong triết lý của dự án nằm ở khả năng tương tác kịch tính giữa cấu trúc và môi trường:
-
Khối kiến trúc sống động: Grove Design Hotel được thiết kế không phải như một khối hộp tĩnh lặng, mà như một thực thể có khả năng thay đổi biểu cảm.
-
Tương tác ánh sáng: Khối kiến trúc "động" này liên tục thay đổi diện mạo theo góc nhìn của người quan sát và điều kiện ánh sáng tự nhiên trong ngày, tạo ra những vũ điệu bóng đổ kịch tính trên bề mặt.
1.2. Phong cách: Industrial Modernism (Hiện đại công nghiệp) kết hợp Minimalism (Tối giản)
Phong cách thiết kế của Grove Design là một tuyên ngôn về sự thô mộc đầy quyền lực, hoàn toàn phù hợp với tiêu chuẩn thiết kế khách sạn 4 sao boutique:

-
Tôn vinh sự thô mộc: Sự thô ráp của các vật liệu công nghiệp như bê tông trần và thép đen không bị che đậy mà được tôn vinh như những chi tiết trang trí nghệ thuật.
-
Định nghĩa mới về sự xa xỉ: Sự kết hợp này tạo nên một định nghĩa mới về sự sang trọng: không phải là sự xa hoa phù phiếm, mà là sự chân thực (authenticity) và tính kiến tạo kịch tính của không gian.
1.3. Mục tiêu: Kiến tạo thiết kế khách sạn 4 sao mang tính nghệ thuật thị giác
Mục tiêu cuối cùng của dự án là mang lại cho du khách một trải nghiệm lưu trú vượt xa sự mong đợi thông thường:
-
Không gian trải nghiệm: Công trình không chỉ đơn thuần cung cấp chỗ nghỉ tiện nghi, mà còn được thiết kế như một gallery nghệ thuật đương đại, nơi du khách "sống" trong tác phẩm.
-
Cá nhân hóa trải nghiệm: Grove Design Hotel hướng tới nhóm du khách có gu thẩm mỹ khắt khe, tìm kiếm những thiết kế khách sạn 4 sao độc bản, nơi kiến trúc trở thành một phần không thể thiếu của hành trình khám phá văn hóa và nghệ thuật.
2. Phân tích Cấu trúc không gian và Hình khối (Massing & Architecture)
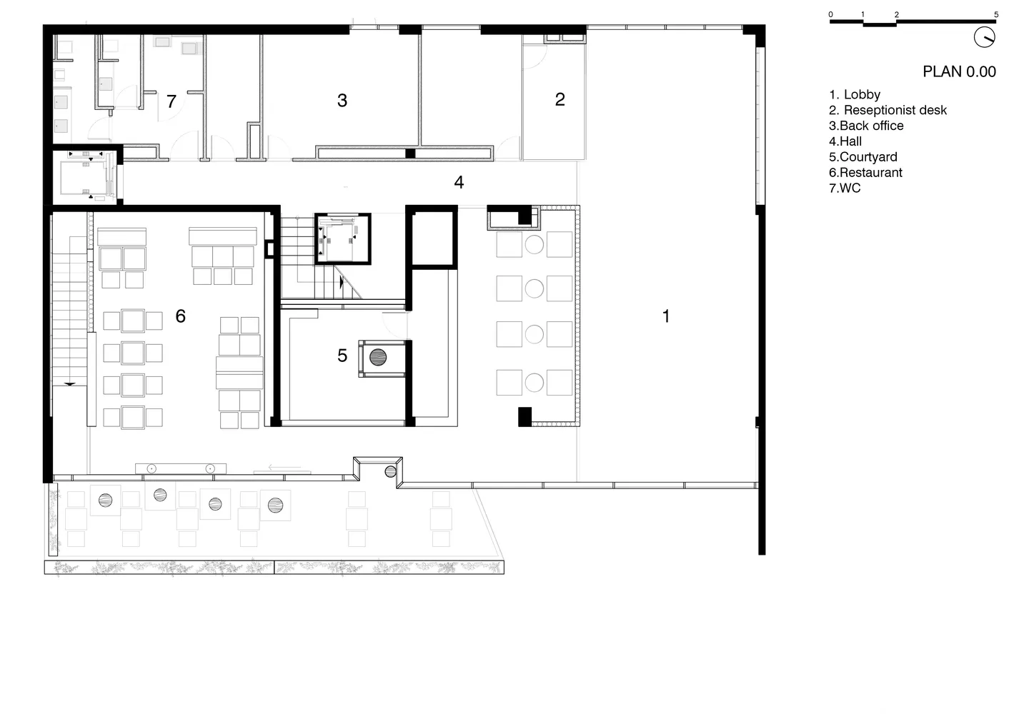
Thiết kế khách sạn Grove Design gây ấn tượng mạnh mẽ ngay từ cái nhìn đầu tiên bởi cách xử lý hình khối đặc - rỗng đầy táo bạo. Laboratory of Architecture #3 không chỉ xây dựng một tòa nhà, họ tạo ra một hệ thống không gian có khả năng tự điều tiết ánh sáng và không khí, mang lại trải nghiệm khác biệt hoàn toàn so với các mô hình thiết kế khách sạn 4 sao truyền thống.
2.1. Quy hoạch mặt bằng: Sự dẫn dắt của ánh sáng
Dựa trên các bản vẽ kỹ thuật, mặt bằng của Grove Design được tổ chức để tối ưu hóa sự lưu thông và tương tác:

-
Thông tầng kịch tính (The Grand Atrium): Quan sát bản vẽ mặt cắt, ta thấy một khoảng thông tầng khổng lồ chạy dọc theo lõi của tòa nhà.
-
"Lá phổi" của công trình: Khoảng trống này không chỉ tạo ra hiệu ứng thị giác mạnh mẽ mà còn đóng vai trò là hệ thống thông gió tự nhiên, giúp tòa nhà luôn thoáng đãng.
-
Dẫn dắt ánh sáng: Ánh sáng mặt trời được đưa từ tầng mái len lỏi xuống mọi ngóc ngách của hành lang và sảnh chờ, xóa bỏ hoàn toàn cảm giác bí bách của các không gian nội thất thông thường.
-
-
Sảnh đón nghệ thuật (Artistic Lobby): Ngay tại mặt bằng tầng trệt, không gian sảnh được thiết kế theo lối tối giản nhưng cực kỳ bề thế. Với hệ trần cao kịch kỡ và các mảng tường bê tông lớn, sảnh đón trở thành một "khúc dạo đầu" đầy ấn tượng, khẳng định cá tính nghệ thuật của một khách sạn 4 sao boutique.
2.2. Mặt đứng (Façade): Vũ điệu của kim loại và kính
Mặt tiền của Grove Design là sự kết hợp hoàn hảo giữa tính kỹ thuật và tính thẩm mỹ đương đại, tạo nên một nhận diện thương hiệu không thể nhầm lẫn:

-
Cấu trúc lưới thép (Steel Mesh Structure): Việc sử dụng hệ khung thép bao phủ bên ngoài không chỉ mang lại vẻ ngoài công nghiệp (Industrial) mạnh mẽ mà còn là một giải pháp kiến trúc thông minh.
-
Màng lọc ánh sáng: Lớp lưới kim loại này đóng vai trò như một màng chắn nắng, lọc bớt cường độ ánh sáng gay gắt nhưng vẫn đảm bảo tầm nhìn xuyên thấu từ bên trong phòng ra phố thị.
-
-
Sự tương phản vật liệu kịch tính: Một sự đối thoại thú vị giữa "nặng" và "nhẹ", giữa "lạnh" và "trong":
-
Thép và Bê tông: Đại diện cho sự vững chãi, lạnh lùng và mạnh mẽ.
-
Kính tràn viền: Mang lại sự trong suốt, mượt mà và hiện đại.
-
Kết quả: Sự tương phản này tạo nên một diện mạo hiện đại, sắc sảo, đúng chất một thiết kế khách sạn 4 sao dành cho thế hệ du khách mới – những người yêu thích sự chân thực và đột phá.
-
2.3. Sự chuyển tiếp nhịp nhàng giữa các khu vực chức năng
Dựa trên bản vẽ mặt bằng tầng điển hình, các khu vực chức năng được sắp xếp xoay quanh lõi thông tầng:

-
Hành lang hở: Thay vì hành lang kín, các kiến trúc sư sử dụng hành lang chạy dọc theo khoảng thông tầng, giúp du khách luôn có sự kết nối với không gian chung và ánh sáng tự nhiên trong mỗi bước đi.
-
Tính riêng tư trong sự mở: Dù cấu trúc có vẻ mở và thông thoáng, nhưng việc sắp xếp các khối phòng ngủ vẫn đảm bảo sự riêng tư tuyệt đối, cách biệt hoàn toàn với tiếng ồn nhờ các lớp "màng" vật liệu thông minh.
3. Ngôn ngữ nội thất: Sự thô mộc đầy quyến rũ
Nội thất bên trong Grove Design Hotel không đi theo định nghĩa thông thường về sự sang trọng với nhung lụa hay pha lê. Thay vào đó, Laboratory of Architecture #3 trình diễn một khả năng bậc thầy trong việc làm chủ các vật liệu thô (Raw materials), biến những thứ tưởng chừng như khô khan thành một không gian nghỉ dưỡng đầy quyến rũ và đậm chất nghệ thuật. Đây chính là linh hồn của một thiết kế khách sạn 4 sao phong cách Industrial Modernism.

3.1. Vật liệu nguyên bản (Raw Materials): Vẻ đẹp của sự chân thực
Triết lý nội thất tại đây tôn trọng tính nguyên bản của vật liệu, coi các khiếm khuyết tự nhiên là những chi tiết đắt giá:

-
Bê tông trần (Exposed Concrete): Những mảng tường bê tông được giữ nguyên bề mặt thô, lộ rõ các vân khuôn gỗ và lỗ bọt khí. Sự vững chãi và gam màu xám đặc trưng tạo nên một phông nền tĩnh lặng và bề thế.
-
Thép đen và Gỗ mộc: Sự đối thoại giữa cái lạnh của kim loại và sự ấm áp của gỗ tự nhiên. Trong thiết kế khách sạn 4 sao này, các mối hàn kim loại hay vết sần trên gỗ không bị che đậy mà được giữ lại như những "vết sẹo" đầy tính nghệ thuật.
3.2. Bảng màu trung tính: Sân khấu cho sự tinh tế
Sử dụng hệ màu trung tính (Neutral Palette) để tạo ra sự cân bằng thị giác và chiều sâu cho không gian:

-
Tông màu chủ đạo: Xám bê tông, đen than đá và màu gỗ sồi tự nhiên. Bảng màu này giúp tâm trí du khách được giải phóng khỏi những kích thích thị giác mạnh, mang lại sự thư thái tuyệt đối.
-
Nền tảng cho nghệ thuật: Những mảng màu trầm này đóng vai trò như một phông nền hoàn hảo, làm nổi bật các tác phẩm nghệ thuật đương đại và đồ nội thất bespoke được thiết kế riêng cho từng căn phòng.
3.3. Ánh sáng cảm xúc: Nghệ thuật của lớp và bóng đổ
Trong thiết kế khách sạn 4 sao Grove Design, ánh sáng được xem là một loại vật liệu kiến trúc vô hình:

-
Hệ thống chiếu sáng theo lớp (Layered Lighting): Thay vì sử dụng ánh sáng dàn trải, khách sạn sử dụng kết hợp giữa ánh sáng điểm (spotlight), ánh sáng hắt tường và ánh sáng tự nhiên từ lõi thông tầng.
-
Tạo dựng kịch bản: Ánh sáng được tập trung vào các "điểm chạm" thị giác như các khối điêu khắc, góc tường bê tông hay các chi tiết thép đặc thù. Điều này tạo ra một bầu không khí ấm áp, bí ẩn và đầy chiều sâu, biến mỗi căn phòng thành một studio nghệ thuật riêng tư vào ban đêm.
3.4. Đồ nội thất Bespoke: Sự may đo hoàn hảo
Mọi món đồ nội thất từ giường ngủ, kệ tủ đến hệ thống đèn đều được Laboratory of Architecture #3 thiết kế riêng để hòa hợp tuyệt đối với cấu trúc tòa nhà:

-
Sự tối giản kịch tính: Đồ nội thất có đường nét gãy gọn, chân mảnh để không làm đứt gãy mạch chảy của không gian.
-
Sự giao thoa công năng: Mỗi món đồ không chỉ là vật dụng mà còn là một phần của kiến trúc, giúp định nghĩa lại sự sang trọng của một khách sạn 4 sao thông qua tính độc bản và sự sáng tạo.
4. Hệ thống hạng phòng: Những "Studio" nghệ thuật riêng tư
Tại Grove Design Hotel, phòng nghỉ không chỉ là nơi để ngủ; chúng được định nghĩa là những "Studio nghệ thuật" – nơi ranh giới giữa không gian sống và xưởng sáng tạo bị xóa nhòa. Dựa trên bản vẽ mặt bằng tầng điển hình, các kiến trúc sư đã khéo léo sắp xếp các phòng nghỉ xoay quanh lõi thông tầng, đảm bảo mỗi căn phòng đều sở hữu một cá tính kiến trúc riêng biệt nhưng vẫn thống nhất trong ngôn ngữ Industrial.
4.1. Standard Design: Sự tinh khiết của tối giản
Đây là hạng phòng tiêu chuẩn nhưng vẫn mang đậm dấu ấn của một thiết kế khách sạn 4 sao boutique.

-
Đặc trưng kiến trúc: Tận dụng triệt để hệ màng lọc ánh sáng từ lớp lưới thép mặt tiền. Nội thất được tinh giản tối đa để nhường chỗ cho sự lưu chuyển của không gian.
-
Trải nghiệm: Phù hợp cho những du khách yêu thích sự gọn gàng và hiện đại. Ánh sáng xuyên qua hệ lam tạo nên những vệt bóng đổ thay đổi theo giờ, biến căn phòng thành một chiếc đồng hồ mặt trời sống động.
4.2. Superior Grove: Không gian của những ý tưởng
Hạng phòng này được thiết kế theo cấu trúc Loft mở, đặc biệt ưu tiên cho mục đích làm việc và sáng tạo.

-
Đặc trưng kiến trúc: Tích hợp khu vực làm việc thông minh với bàn gỗ mộc dài, đặt sát các mảng tường bê tông trần.
-
Trải nghiệm: Mang lại cảm hứng làm việc mãnh liệt trong một không gian đậm chất "Xưởng nghệ thuật". Sự tĩnh lặng của bê tông giúp du khách dễ dàng tập trung cao độ.
4.3. Deluxe Terrace: Sự kết nối Panorama
Deluxe Terrace là hạng phòng dành cho những ai muốn ôm trọn nhịp sống đô thị vào tầm mắt.

-
Đặc trưng kiến trúc: Sở hữu hệ cửa kính kịch trần mở ra ban công lớn. Dựa trên bản vẽ mặt cắt [_16.00.webp], vị trí của hạng phòng này thường nằm ở các tầng cao, nơi cấu trúc lưới thép mặt tiền được mở rộng để tối ưu hóa tầm nhìn.
-
Trải nghiệm: Một sự kết nối không giới hạn với bầu trời và cảnh quan thành phố, xóa tan mọi rào cản giữa nội thất và ngoại thất.
4.4. The Grove Suite: Đỉnh cao của phong cách Industrial Luxury
Hạng phòng cao cấp nhất, nơi sự thô mộc đạt đến độ tinh xảo tối thượng của tiêu chuẩn khách sạn 4 sao độc bản.
-
Đặc trưng kiến trúc: Diện tích lớn nhất với khu vực phòng khách và phòng ngủ phân tách bằng các giải pháp kiến trúc thay vì tường đặc. Điểm nhấn là bồn tắm độc lập (freestanding tub) đặt lộ thiên giữa phòng, đối lập hoàn hảo với nền bê tông xám.
-
Trải nghiệm: Một không gian nghỉ dưỡng thượng lưu mang hơi thở "Loft New York", nơi du khách có thể tận hưởng sự xa xỉ trong một tinh thần tự do, phóng khoáng tuyệt đối.
Bảng so sánh đặc điểm kiến trúc các hạng phòng
| Hạng phòng | Diện tích / Vị trí | Giải pháp kiến trúc nổi bật | Tiện ích Bespoke |
| Standard Design | Tầng trung / Hướng nội | Hệ lam mặt tiền lọc sáng tự nhiên. | Kệ treo đồ thép đen tối giản. |
| Superior Grove | Cận lõi thông tầng | Cấu trúc Loft, tối ưu hóa góc làm việc. | Bàn làm việc gỗ sồi nguyên khối. |
| Deluxe Terrace | Tầng cao / Hướng phố | Ban công kính tràn viền, view Panorama. | Ghế Lounge thiết kế độc bản. |
| The Grove Suite | Góc tòa nhà (Corner) | Bồn tắm nghệ thuật, không gian đa tầng. | Hệ thống âm thanh & ánh sáng kịch bản. |
5. Trải nghiệm thực tế: Điểm chạm của sự sáng tạo
Trải nghiệm lưu trú tại Grove Design Hotel vượt xa những tiêu chuẩn nghỉ dưỡng thông thường của một khách sạn 4 sao. Đây không chỉ là nơi dừng chân, mà là một hành trình khám phá những giới hạn mới của kiến trúc đương đại, nơi du khách thực sự chạm vào sự sáng tạo trong từng khoảnh khắc sống.

5.1. Tính riêng tư cao: Sự tĩnh lặng sau lớp lưới thép
Dù tọa lạc tại vị trí đô thị sôi động, Grove Design mang lại một cảm giác an toàn và kín đáo tuyệt đối nhờ giải pháp mặt đứng thông minh:

-
Lớp màng bảo vệ: Hệ thống lưới kim loại bao quanh mặt tiền hoạt động như một lớp vỏ bọc tinh tế. Nó cho phép du khách quan sát nhịp sống thành phố nhưng ngăn chặn hiệu quả những ánh nhìn trực diện từ bên ngoài vào không gian riêng tư.
-
Sự giải phóng tâm trí: Cảm giác được ẩn mình trong một "pháo đài" thép hiện đại giúp du khách hoàn toàn rũ bỏ áp lực, tận hưởng sự riêng tư mà vẫn không cảm thấy bị tách biệt khỏi thế giới.
5.2. Cảm hứng nghệ thuật: Mỗi góc nhìn là một tác phẩm
Trong thiết kế khách sạn 4 sao này, kiến trúc chính là tác phẩm nghệ thuật lớn nhất, và mỗi ngóc ngách nhỏ đều được chăm chút như một chi tiết trong gallery:

-
Gallery thu nhỏ: Từ khu vực hành lang chạy dọc lõi thông tầng đến sảnh thang máy, mọi thứ đều được sắp đặt với ý đồ nghệ thuật rõ nét. Sự kết hợp giữa mảng tường bê tông trần xám lạnh và những dải ánh sáng vàng ấm áp tạo nên những khung hình đầy cảm hứng nghệ thuật thị giác.
-
Kích thích sự sáng tạo: Không gian này đặc biệt thu hút những du khách làm trong lĩnh vực sáng tạo, thiết kế. Sự thô mộc của vật liệu và tính kiến tạo của hình khối đóng vai trò như một chất xúc tác, khơi gợi những ý tưởng mới ngay trong kỳ nghỉ.
5.3. Sự thư thái từ tối giản: Sự xa xỉ của "Khoảng trống"
Laboratory of Architecture #3 tin rằng sự thư thái thực sự đến từ việc giải phóng không gian và tâm trí khỏi những chi tiết rườm rà:

-
Loại bỏ sự nhiễu loạn: Trong thiết kế khách sạn 4 sao Grove Design, sự vắng mặt của những món đồ trang trí xa hoa, cầu kỳ giúp du khách không bị phân tâm. Sự tập trung được dồn vào chất lượng của ánh sáng, không khí và bề mặt vật liệu chân thực
-
Nghỉ dưỡng chất lượng: Việc sống trong một không gian tối giản kịch trần giúp hệ thần kinh được nghỉ ngơi. Du khách sẽ cảm nhận được sự nhẹ nhàng, tự do khi mọi công năng đều được phục vụ một cách tinh gọn nhưng hiệu quả nhất.

5.4. Tương tác với "Hơi thở" của tòa nhà
Điểm độc đáo nhất trong trải nghiệm thực tế tại đây chính là sự kết nối giữa du khách và cấu trúc tòa nhà:
-
Sống cùng ánh sáng: Nhờ thiết kế thông tầng kịch tính, du khách có thể quan sát sự thay đổi của thời gian qua cách ánh sáng di chuyển trên các bức tường bê tông xuyên suốt từ sáng đến tối.
-
Điểm chạm vật liệu: Trải nghiệm thực tế còn đến từ việc chạm tay vào bề mặt gỗ mộc ấm áp hay cảm nhận cái lạnh của thép đen kịch tính. Những tương tác vật lý này tạo nên một sự gắn kết kỳ lạ, khiến kỳ nghỉ trở nên đáng nhớ và chân thực hơn bao giờ hết.








Đánh giá
Chưa có đánh giá nào.