Thiết kế khách sạn Hotel The Mirror Barcelona không chỉ là một bài toán về không gian lưu trú, mà là một cuộc dạo chơi đầy táo bạo với thị giác. Đúng như tên gọi, công trình này sử dụng nghệ thuật phản chiếu qua hệ thống gương dày đặc và tông màu trắng chủ đạo để xóa nhòa mọi giới hạn về diện tích. Tọa lạc tại khu Eixample sang trọng, khách sạn là minh chứng cho việc tư duy kiến trúc hiện đại có thể biến những không gian nhỏ hẹp thành một "mê cung" ánh sáng đầy tinh tế, mang lại trải nghiệm nghỉ dưỡng độc nhất vô nhị giữa lòng Barcelona.
1. Triết lý thiết kế: Sự phá vỡ giới hạn của diện tích
Thiết kế khách sạn Hotel The Mirror Barcelona không chỉ là một công trình lưu trú, mà là một cuộc thí nghiệm về thị giác và hình học không gian. Tọa lạc tại quận Eixample – khu vực di sản với những ô phố Cerdà vuông vức và mật độ xây dựng dày đặc, khách sạn đối mặt với thách thức lớn về diện tích mặt bằng khiêm tốn.
1.1. Ý tưởng chủ đạo: Gương là "Vật liệu kiến trúc"
Thông thường, gương được coi là phụ kiện trang trí nội thất. Tuy nhiên, trong thiết kế khách sạn 4 sao này, GCA Architects đã nâng tầm gương thành một loại vật liệu cấu trúc cốt lõi.

-
Tạo dựng ảo ảnh không gian: Bằng cách sử dụng các hệ gương phẳng lớn không khung, ranh giới giữa các bức tường bị xóa nhòa. Không gian không còn kết thúc ở bề mặt vật lý mà tiếp tục kéo dài vô tận qua sự phản chiếu.
-
Vật liệu của ánh sáng: Gương được sử dụng để "bắt" và điều hướng ánh sáng từ giếng trời trung tâm vào các ngóc ngách sâu nhất của tòa nhà, nơi mà ánh sáng tự nhiên khó lòng tiếp cận theo cách thông thường.

1.2. Phong cách Minimalism (Tối giản) và Sắc trắng tuyệt đối
Để hiệu ứng phản chiếu đạt được sức mạnh tối đa, phong cách tối giản là lựa chọn bắt buộc:
-
Bảng màu đơn sắc (Monochromatic): Màu trắng được sử dụng cho toàn bộ trần, sàn và tường. Màu trắng đóng vai trò như một "phông nền sạch", giúp ánh sáng không bị hấp thụ mà phản xạ liên tục, tạo ra một bầu không khí vô trùng, thanh khiết và hiện đại.
-
Công nghệ hiện đại: Sự tối giản ở đây không đơn điệu mà đi kèm với kỹ thuật thi công đỉnh cao. Các mối nối gương, kính và hệ thống chiếu sáng âm trần được xử lý tinh xảo để không làm gián đoạn dòng chảy của thị giác.

1.3. Mục tiêu: Kiến tạo sự "Khoáng đạt ảo" trong "Diện tích thực"
Mục tiêu cuối cùng của thiết kế khách sạn Hotel The Mirror Barcelona là thay đổi hoàn toàn cảm nhận về quy mô của khách hàng:
-
Xóa bỏ tâm lý ngột ngạt: Khách lưu trú tại các khách sạn trung tâm đô thị thường lo ngại về diện tích phòng nhỏ. The Mirror giải quyết điều này bằng cách tạo ra một "thế giới thứ hai" đằng sau mặt gương, mang lại cảm giác khoáng đạt, sang trọng đúng tầm vóc một khách sạn 4 sao cao cấp.
-
Tính duy lý trong thiết kế: Mọi chi tiết từ vị trí đặt gương đến góc độ chiếu sáng đều được tính toán trên bản vẽ kỹ thuật để đảm bảo rằng dù ở bất kỳ góc nhìn nào, du khách cũng thấy không gian đang "mở" ra thay vì đóng lại.

2. Phân tích Bản vẽ kỹ thuật và Cấu trúc không gian
Bộ bản vẽ kỹ thuật (Ground, Floor, Section) của GCA Architects không chỉ là sơ đồ công năng mà còn là lời giải cho bài toán "mở rộng không gian ảo" trong một diện tích thực tế hạn chế.
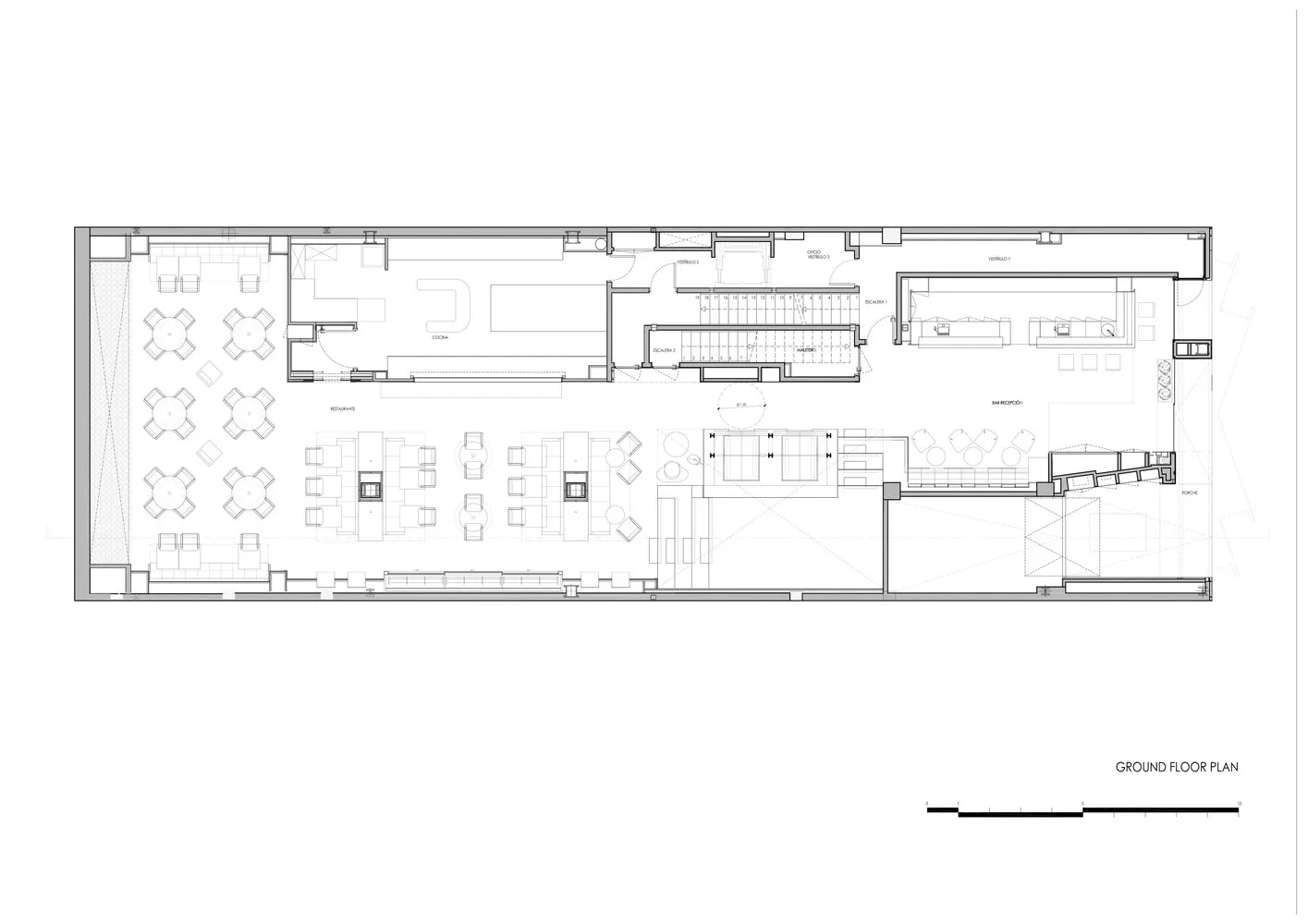
2.1. Mặt bằng tầng trệt - Sự xuyên thấu và Tính vô hạn
Bản vẽ cho thấy một tư duy quy hoạch mặt bằng theo trục dọc, điển hình cho các khu đất "ống" tại Barcelona.
-
Dòng chảy giao thông (Flow): Sảnh đón được thiết kế như một dòng chảy liên tục. Từ cửa chính, ánh mắt của du khách có thể phóng tầm mắt xuyên suốt qua khu vực lễ tân, sảnh chờ và dừng lại ở khu vực Bar. Không có bất kỳ bức tường đặc nào ngăn cản tầm nhìn, tạo ra một sự xuyên thấu (transparency) tuyệt đối.

-
Hiệu ứng nhân bản (The Double Effect): Điểm mấu chốt nằm ở hai vách tường chạy dọc sảnh. Bản vẽ cho thấy các vị trí lắp đặt hệ thống gương lớn đối diện nhau. Kỹ thuật này tạo ra hiệu ứng "mise-en-abyme" (hình trong hình), khiến sảnh đón có cảm giác rộng gấp nhiều lần về chiều ngang, xóa tan cảm giác ngột ngạt của một khu đất hẹp.

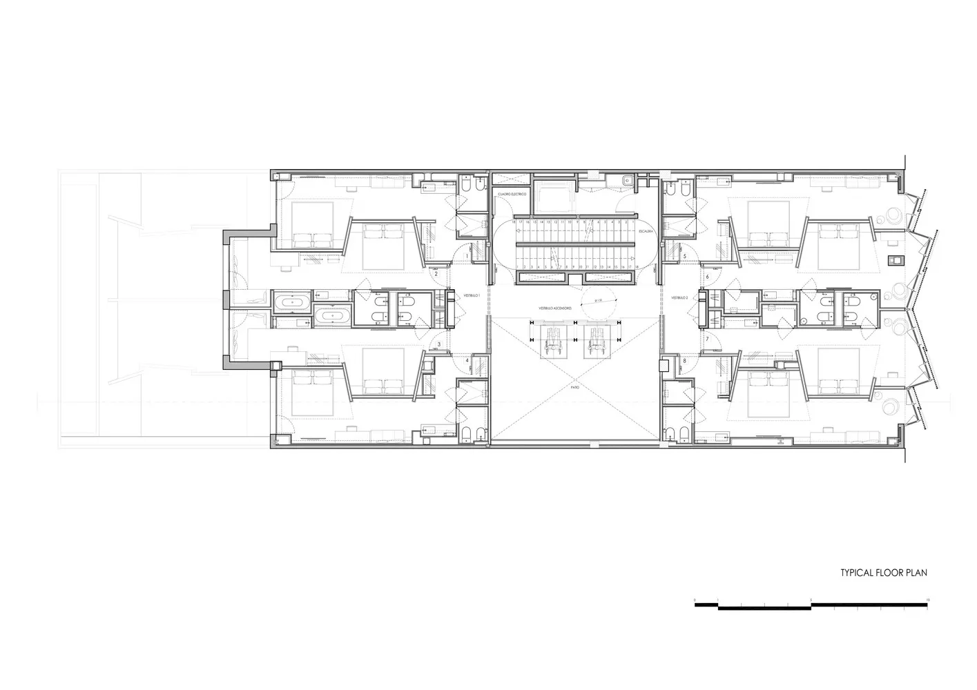
2.2. Tầng điển hình và Module phòng ngủ
Quan sát bản vẽ, ta thấy cách sắp xếp module phòng ngủ cực kỳ thông minh để đảm bảo tiêu chuẩn thiết kế khách sạn 4 sao.
-
Tối ưu hóa hướng sáng: Do diện tích mặt tiền hạn chế, các kiến trúc sư đã bố trí phòng dọc theo hai trục: mặt tiền phố và mặt giếng trời trung tâm. Điều này đảm bảo 100% phòng nghỉ đều có khả năng thông gió và chiếu sáng tự nhiên.

-
Giải phóng mặt bằng nội thất: Bản vẽ chi tiết phòng cho thấy việc loại bỏ các vách ngăn thạch cao dày cộm. Thay vào đó, khu vực vệ sinh được bao bọc bởi kính hoặc gương lướt.
-
Hiệu quả: Ánh sáng từ cửa sổ có thể xuyên qua lớp kính phòng tắm, chiếu sáng đến tận cửa ra vào.
-
Không gian ảo: Gương trong phòng không chỉ để soi mà được đặt tại các góc chiến lược để phản chiếu cửa sổ, khiến du khách có cảm giác căn phòng có hai mặt thoáng.
-

2.3. Mặt cắt kỹ thuật - Hệ thống "Lõi sáng" và Phân tầng dọc
Các bản vẽ mặt cắt tiết lộ "cỗ máy" vận hành bên trong của The Mirror.
-
Giếng trời Atrium - Trục xương sống: Mặt cắt cho thấy một khoảng không xuyên suốt từ tầng mái xuống tầng trệt.
-
Thang máy kính: Việc đặt thang máy kính trong lòng giếng trời biến quá trình di chuyển thành một trải nghiệm thị giác. Khách hàng như đang bay giữa một mê cung phản chiếu khi các lớp gương dọc giếng trời nhân bản hình ảnh của cabin và ánh sáng.
-

-
Phân bổ tầng cao thông minh:
-
Tầng hầm (Basement): Được dành trọn cho khu vực kỹ thuật, kho và hệ thống MEP, giúp các tầng trên hoàn toàn dành cho dịch vụ.
-
-
Tầng mái (Rooftop): Mặt cắt cho thấy cách xử lý cao độ để đặt một hồ bơi nhỏ và Sky Bar. Dù diện tích khiêm tốn, nhưng việc đẩy tiện ích lên cao giúp khách hàng có thêm trải nghiệm panorama thành phố, một tiêu chuẩn không thể thiếu của khách sạn 4 sao cao cấp.
-

2.4. Chi tiết cấu tạo - Sự chuẩn xác đến từng milimet
Các bản vẽ chi tiết cho thấy kỹ thuật thi công gương và kính không khung (frameless).
-
Mối nối vô hình: Để hiệu ứng phản chiếu đạt mức hoàn hảo, các kiến trúc sư yêu cầu độ chính xác tuyệt đối tại các điểm tiếp giáp giữa gương và tường/trần. Việc không sử dụng nẹp hay khung lộ thiên giúp ảo giác về không gian không bị ngắt quãng, tạo nên sự tối giản tinh tế (Minimalist).

3. Ngôn ngữ nội thất: Màu trắng và Sự phản chiếu (The Geometry of Reflection)
Trong thiết kế khách sạn Hotel The Mirror Barcelona, nội thất không được coi là vật trang trí bổ sung mà là một thực thể thống nhất với kiến trúc. Mọi chi tiết nội thất đều phục vụ mục đích duy nhất: Phá vỡ các giới hạn vật lý của căn phòng.

3.1. Sắc trắng tinh khiết: Chiến lược "Xóa nhòa vật thể"
Việc sử dụng tông màu trắng tuyệt đối (Total White) trên mọi bề mặt từ tường, trần cho đến sàn nhà không chỉ đơn thuần là lựa chọn thẩm mỹ Minimalism:
-
Phông nền cho ánh sáng: Màu trắng có hệ số phản xạ ánh sáng cao nhất. Trong một không gian hẹp, sắc trắng biến các bức tường thành những tấm hắt sáng tự nhiên, giúp ánh sáng "nhảy múa" và lan tỏa đồng đều, triệt tiêu hoàn toàn các góc tối.
-
Sự vô hình của ranh giới: Khi sàn, tường và trần cùng một màu, mắt người khó xác định được điểm kết thúc của không gian, đặc biệt là khi kết hợp với các góc phản chiếu từ gương.

3.2. Vật liệu Gương và Kính: Kỹ thuật tạo dựng "Không gian ảo"
Gương tại The Mirror không chỉ đơn thuần để soi, mà được sử dụng như những mảng tường xuyên thấu:
-
Ốp gương đa diện: Gương được ốp vào các vị trí chiến lược như cột trụ, vách ngăn phòng tắm và thậm chí là toàn bộ trần nhà tại một số khu vực điểm nhấn. Điều này tạo ra một "mê cung" thị giác, nơi thực và ảo đan xen.

-
Kỹ thuật thi công liền mạch (Seamless Construction): Dựa trên các bản vẽ chi tiết, ta thấy sự chuẩn xác cực cao trong việc lắp đặt. Các tấm gương được ghép khít sát không sử dụng khung nẹp lộ thiên, tạo nên một bề mặt phẳng tuyệt đối. Chính sự liền mạch này giúp ảo giác về không gian trở nên chân thực, khiến du khách có cảm giác căn phòng rộng gấp đôi, gấp ba diện tích thực tế.
3.3. Đồ nội thất Bespoke: Sự tối giản và Tích hợp thông minh
Để duy trì tinh thần của một khách sạn 4 sao cao cấp trong diện tích nhỏ, đồ nội thất được "đo ni đóng giày" (Bespoke) cho từng vị trí:
-
Nội thất tích hợp: Giường ngủ, bàn làm việc và tủ kệ thường được thiết kế như một khối thống nhất gắn liền với tường hoặc sàn. Việc loại bỏ chân đồ nội thất (thiết kế treo) giúp giải phóng tối đa diện tích sàn, tạo cảm giác sàn nhà rộng và thoáng hơn.

-
Sự biến mất của vật dụng: Các thiết bị công nghệ và lưu trữ được giấu kín sau các cánh cửa trắng phẳng phiu, giúp không gian luôn ngăn nắp và duy trì được vẻ tinh khôi đặc trưng của phong cách Minimalism.
3.4. Điểm nhấn thị giác từ hình ảnh thực tế
Qua các góc chụp thực tế như, ta thấy:
-
Tương tác màu sắc: Màu trắng không gây cảm giác lạnh lẽo nhờ sự thay đổi sắc độ của ánh sáng tự nhiên khi phản chiếu qua các bề mặt khác nhau (kính, gương, kim loại trắng).
-
Độ sâu không gian: Sự phản chiếu của các vách kính phòng tắm kết hợp với gương tường tạo ra những lớp không gian chồng lấp (layering), khiến ngay cả những căn phòng tiêu chuẩn cũng mang tầm vóc của một căn Suite sang trọng.
4. Trải nghiệm thực tế: Cuộc dạo chơi giữa thực và ảo
Lưu trú tại Hotel The Mirror Barcelona không chỉ đơn thuần là việc sử dụng một căn phòng, mà là sự dấn thân vào một hành trình khám phá thị giác đầy thú vị. GCA Architects đã biến những giới hạn vật lý thành một sân chơi nghệ thuật, nơi ranh giới giữa thực và ảo luôn bị thách thức.

4.1. Thăng hoa thị giác: Sự chuyển động của ánh sáng và hình ảnh
Ngay từ khoảnh khắc bước chân qua cửa chính, du khách sẽ trải qua cảm giác "mất phương hướng" một cách đầy tích cực:
-
Chiều sâu vô tận: Nhờ hệ thống gương đối bản tại sảnh đón, không gian dường như mở ra một chiều không gian thứ hai. Những hàng cột và dãy đèn LED âm trần được nhân bản vô số lần, tạo nên một phối cảnh kịch tính và sang trọng.
-
Vũ điệu ánh sáng: Vào ban ngày, ánh sáng tự nhiên từ giếng trời trung tâm phản chiếu qua các bề mặt gương, làm bừng sáng mọi ngóc ngách. Khi đêm xuống, hệ thống chiếu sáng thông minh kết hợp với các bề mặt gương trắng tạo ra một không gian lung linh, huyền ảo nhưng vẫn duy trì sự ấm áp cần thiết cho một khách sạn 4 sao.
4.2. Sự riêng tư trong không gian mở (The Privacy of Reflections)
Một trong những lo ngại lớn nhất khi sử dụng quá nhiều kính và gương là sự riêng tư. Tuy nhiên, thiết kế khách sạn Hotel The Mirror Barcelona đã xử lý bài toán này bằng sự tinh tế trong góc độ:
-
Góc phản chiếu chiến lược: Các tấm gương được tính toán góc độ kỹ lưỡng trên bản vẽ chi tiết để người ở trong phòng có thể quan sát được sự rộng mở của không gian phố phường nhưng người từ bên ngoài hoặc từ phòng đối diện không thể nhìn thấy các hoạt động riêng tư bên trong.

-
Sự ngăn cách vô hình: Các vách kính phòng tắm được xử lý bề mặt mờ ở những cao độ cần thiết, vừa đảm bảo ánh sáng xuyên suốt, vừa tạo ra một rào cản tâm lý an toàn cho du khách.
4.3. Tiện ích 4 sao: Đỉnh cao của sự nén không gian
Dù diện tích mặt bằng khiêm tốn, khách sạn vẫn không thỏa hiệp về chất lượng dịch vụ:
-
Tầng mái Panorama: Mặt cắt section_(4).jpg cho thấy một hồ bơi ngoài trời được "đặt" một cách khéo léo trên đỉnh tòa nhà. Đây là nơi thực và ảo hòa quyện rõ nét nhất khi mặt nước hồ bơi phản chiếu bầu trời Barcelona, xóa nhòa ranh giới giữa kiến trúc và thiên nhiên.
-
Spa và Sky Bar: Những tiện ích này được thiết kế theo phong cách tối giản đồng bộ với toàn bộ tòa nhà. Sự nhỏ gọn được bù đắp bằng chất lượng vật liệu cao cấp và dịch vụ cá nhân hóa, tạo ra cảm giác độc bản (Exclusive) cho du khách.
4.4. Cảm xúc từ lõi giao thông
Trải nghiệm đi thang máy xuyên qua lòng giếng trời là một điểm nhấn không thể bỏ qua:
-
Hành trình xuyên thấu: Thang máy kính cho phép du khách quan sát toàn bộ cấu trúc "lõi sáng" của tòa nhà. Sự kết hợp giữa tốc độ di chuyển và các hình ảnh phản chiếu liên tục trên vách gương giếng trời tạo ra một cảm giác phấn khích, hiện đại và khác biệt hoàn toàn so với các khách sạn truyền thống.
5. Hệ thống hạng phòng: Sự tối ưu hóa trong từng mét vuông
Trong thiết kế khách sạn Hotel The Mirror Barcelona, các hạng phòng không được phân chia dựa trên sự xa hoa của vật liệu mà dựa trên trải nghiệm không gian và tầm nhìn. Dù diện tích thực tế có thể khiêm tốn so với tiêu chuẩn thông thường, nhưng nhờ hiệu ứng gương, mọi hạng phòng đều mang lại cảm giác rộng rãi hơn gấp đôi diện tích thực tế.
5.1. Phân tích chi tiết các hạng phòng chính

-
Deluxe Room (Hạng phòng tiêu chuẩn - 26m2):
Đây là hạng phòng phổ biến nhất, đại diện cho triết lý "Sắc trắng tinh khiết". Với diện tích 26m2, các kiến trúc sư đã loại bỏ mọi vách ngăn đặc. Việc sử dụng gương ốp kịch trần giúp căn phòng tiêu chuẩn này xóa bỏ cảm giác của một chiếc "hộp ngủ" đô thị, thay vào đó là một không gian khoáng đạt và tràn ngập ánh sáng.
-
Superior with Terrace or Balcony (25m2):
Hạng phòng này là sự kết nối hoàn hảo giữa nội thất Minimalism và không gian ngoại thất của quận Eixample. Mặc dù diện tích trong nhà chỉ 25m2, nhưng việc sở hữu ban công hoặc sân hiên (terrace) giúp mở rộng tầm nhìn thực tế, tạo ra một luồng khí tươi tự nhiên cho căn phòng.
-
Privilege Double Room with Terrace (21m2):
Dù có diện tích nhỏ nhất (21m2), nhưng đây lại là hạng phòng thể hiện rõ nhất kỹ năng "nén không gian" của GCA Architects. Mọi món đồ nội thất đều là dạng Bespoke, tích hợp đa năng để nhường chỗ cho lối đi và khoảng mở ra sân hiên riêng tư.
-
Junior Suite with Balcony (Hạng phòng cao cấp nhất - 35m2):
Đây là đỉnh cao của trải nghiệm tại The Mirror. Với 35m2, Junior Suite cho phép phân chia khu vực nghỉ ngơi và tiếp khách một cách rõ rệt hơn. Hệ thống gương tại đây được sắp đặt đa diện, kết hợp với ban công rộng, biến căn phòng thành một khối pha lê rực rỡ giữa lòng Barcelona.

5.2. Tóm tắt thông số các hạng phòng
| Nhóm hạng phòng | Diện tích (m2) | Đặc điểm nổi bật |
| Deluxe Room | 26m2 | Phòng tiêu chuẩn, tối ưu hóa hiệu ứng gương và sắc trắng. |
| Superior Room | 25m2 | Có thêm Terrace hoặc Balcony, tăng cường kết nối thiên nhiên. |
| Privilege Double | 21m2 | Nhỏ gọn, thông minh, sở hữu sân hiên riêng tư đắt giá. |
| Junior Suite | 35m2 | Diện tích lớn nhất, có Balcony, phân khu chức năng rõ rệt. |
5.3. Tiêu chuẩn thiết kế chung cho mọi hạng phòng
Dựa trên bản vẽ mặt bằng và hình ảnh thực tế, tất cả các hạng phòng đều sở hữu những đặc điểm kỹ thuật đồng nhất của một khách sạn 4 sao hiện đại:
-
Thiết kế "Open-plan": Phòng tắm và phòng ngủ thường chỉ ngăn cách bằng kính trong suốt hoặc gương lướt để ánh sáng xuyên thấu toàn bộ căn phòng.
-
Nội thất treo (Wall-mounted): Giường và bàn làm việc được thiết kế dạng treo, không chân, giúp sàn nhà trắng muốt kéo dài liên tục, tăng hiệu ứng thị giác về diện tích.
-
Tầm nhìn giếng trời: Các phòng không nằm mặt tiền phố sẽ hướng vào giếng trời trung tâm (Atrium), nơi du khách có thể quan sát sự phản chiếu của tòa nhà qua các lớp gương chạy dọc lõi thang máy.













Đánh giá
Chưa có đánh giá nào.